Zu verkaufen 139,000€* VHB - Gewerbe, Gewerbefläche, Kapitalanlage, Lager, Produktionsfläche
Garagen, Lager, Produktion Balingen Zillhausen
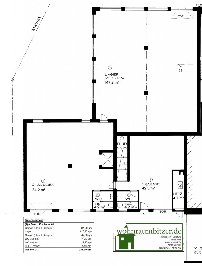
ca. 288 m² Gewerbe-, Produktionsfläche in einem Gewerbeobjekt 1 von 4 zu verkaufen
Verkaufspreis 139.000 €
Wie immer bei uns, zuerst einmal die Fakten:
- Hier wird die Fläche im Erdgeschoss verkauft, es gibt noch eine weitere Fläche im OG mit ca. 518 m² zu verkaufen siehe hier http://www.wohnraumbitzer.de/property/11556-2/
- ca. 288 m² Produktions-, Lager- oder Bürofläche im Erdgeschoss zu verkaufen
- Aktuell für 800 € Kaltmiete vermietet. Mieter kann übernommen, oder kurzfristig gekündigt werden
- Vielseitige Nutzbarkeit
- Kleiner Garten gehört auch noch dazu
- direkt an der Hauptstraße gelegen
- Erdgeschoss, befahrbar
- Aber keine allzu hohe Deckenhöhe
- Bürofläche
- Kleine Gartenfläche
- Immobilie befindet sich in einem Gewerbezentrum
- WC vorhanden
- 1 von 3 zu verkaufenden Flächen/ Teileigentum am Gebäude
- 2 von 3 Einheiten stehen noch zum verkauf
- Link zum anderen Teil
Objektbeschreibung
Sie bauen ein neues Unternehmen auf oder benötigen künftig mehr Raum für Wachstum und Expansion?
Dann sind Sie hier genau richtig!
Balingen Zillhausen, direkt an der Hauptstraße gelegenen, steht diese ca. 288 m² große, ebenerdige Gewerbefläche zum Verkauf.
Die Immobilie bietet zahlreiche Nutzungsoptionen, ob als Lagerhalle, Werkstatt oder moderne Bürofläche im Industrial Style.
Die großzügige, lichtdurchflutete Fläche eignet sich hervorragend als Atelier, Garage, Schrauberwerkstatt, Lager oder mit einer Kombination aus mehreren Nutzungsarten.
Ein besonderes Highlight sind die drei separaten Garagen-Einfahrten, die eine komfortable Anlieferung, Aufteilung oder auch getrennte Nutzung einzelner Bereiche ermöglichen.
Dank der ebenerdigen Lage ist die Fläche barrierefrei zugänglich und mit einem hoch belastbaren Boden ausgestattet, ideal für gewerblich-industrielle Nutzung.
Die Immobilie ist selbstverständlich beheizbar, wodurch auch ganzjähriges Arbeiten oder Lagern problemlos möglich ist.
Ob junges Start Up oder wachsender Betrieb, diese Fläche bietet Ihnen die nötige Flexibilität und Infrastruktur, um Ihre unternehmerischen Pläne erfolgreich umzusetzen.
Höhe der Gewerbefläche, Einfahrtsmöglichkeiten (alle Angaben ohne Gewähr und nur ca. Maß):
Pfeffinger Straße, neues Sektionaltor mit Eingangstüre:
ca. 2,05 Meter.
Deckenhöhe vorderer Bereich der Gewerbefläche ca. 2,20 Meter (auf den Bildern dargestellt mit dem schwarzen BMW X5)
Hinterer Bereich normales Garagentor, Eingang Auchtenstraße:
Einfahrtshöhe ca. 2,10 Meter neues Sektionaltor und neuer Boden, ca. 2,30 Meter Deckenhöhe hinterer Bereich. Siehe Bild unten und oben
Aber lassen Sie uns sehr gerne alles im persönlichen Gespräch besprechen.
Tel.: 07431-7551917
Ausstattung
Industrieboden, Holzfenster, Öl- Zentralheizung Bj 2022, separates WC.
Lage
Pfeffinger Straße 12, 72336 Zillhausen
Makrolage
Zillhausen ist mit seinen ca. 872 Einwohnern ein Stadtteil von Balingen und wurde am 1. Januar 1973 nach Balingen eingemeindet.
Zillhausen liegt sehr schön und ruhig auf der Schwäbischen Alb und ist in einem kleinerem Tal umgeben von Anhöhen gelegen.
Die hier zu vermietende Gewerbefläche liegt direkt im Ortskern von Zillhausen, an der Hauptstraße.
Zahlen & Fakten Zillhausen
Einwohnerzahl: Stand 31. Dez 2018
Zillhausen 872
Höhenlage 644 m über NN
Gesamtmarkungsfläche 7,26 KM²
Energieausweis Zillhausen
Liegt zur Besichtigung vor.
Steinreichbitzer.de
Wussten Sie schon das bei uns der Service nach dem Wohnungskauf noch weitergeht?
Wir helfen Ihnen beim Fliesenlegen, kümmern uns um Ihren Garten und sorgen dafür das Ihre Jahresabrechnung (z.B.: in der WEG) stimmt.
Sprechen Sie uns an, wir helfen Ihnen gerne.
Sonstiges
Die Gewerbefläche steht aktuell leer und kann nach Absprache übergeben werden.
*Die Käufermaklerprovision in Höhe von 3,57% inkl. 19% der gesetzlichen Mehrwertsteuer auf den Kaufpreis ist mit dem Zustandekommen des Kaufvertrages (notarieller Vertragsabschluss) verdient und sofort zur Zahlung fällig. Die Firma wohnraumbitzer.de Bitzer Majk , erhält einen unmittelbaren Zahlungsanspruch gegenüber dem Käufer (Vertrag zugunsten Dritter, § 328 BGB). Wir dürfen auch für den Verkäufer tätig werden.
Alle Angaben und Informationen zum Objekt wurden uns ausschließlich von unserem Auftraggeber zur Verfügung gestellt, diese sind ohne Gewähr. Des weiteren übernehmen wir keine Gewähr für Aktualität, Richtigkeit und Vollständigkeit dieser Angaben.
Die Grunderwerbsteuer, Notar- und Grundbuchkosten sind vom Käufer zu tragen.
Stichworte
Lager & Produktionsfläche in Balingen Zillhausen zu verkaufen. Kann auch als Bürofläche genutzt werden. Ca. 288 m² Fläche. Öl-Zentralheizung. Bundesland: Baden- Württemberg, Ort Balingen Zillhausen, Plz.: 72336 . Kein Denkmalschutz.
Links, Aushängeschilder/ Veranstaltungen die für die Lage, Meßstetten/ Albstadt-Ebingen sprechen
Weiterführende Links:
Industrie In Balingen:
Vereine In Balingen:
wohnraumbitzer.de Ihr Immobilienmakler Albstadt – Stuttgart – Bodensee
Konnten wir Sie für diese Immobilie begeistern?
Gerne stehen wir Ihnen für einen Besichtigungstermin zur Verfügung. Rufen Sie uns noch heute an.
F. 07431 74 99 770















